Search Icon
Request A Quote
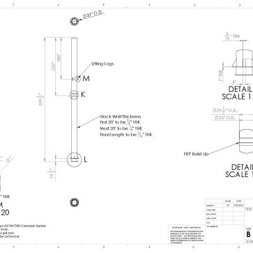
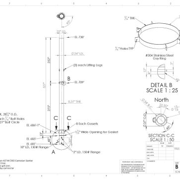
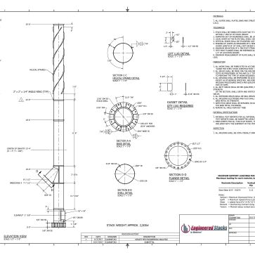
Stack Layout Shop_Page_1

Technical Drawings

Our engineers work together with your team to build out full models of your exhaust and stack system. Whether you have an existing design or require our expertise to advise you, we will provide you with 3D models and drawing sets for final design and ease of installation.